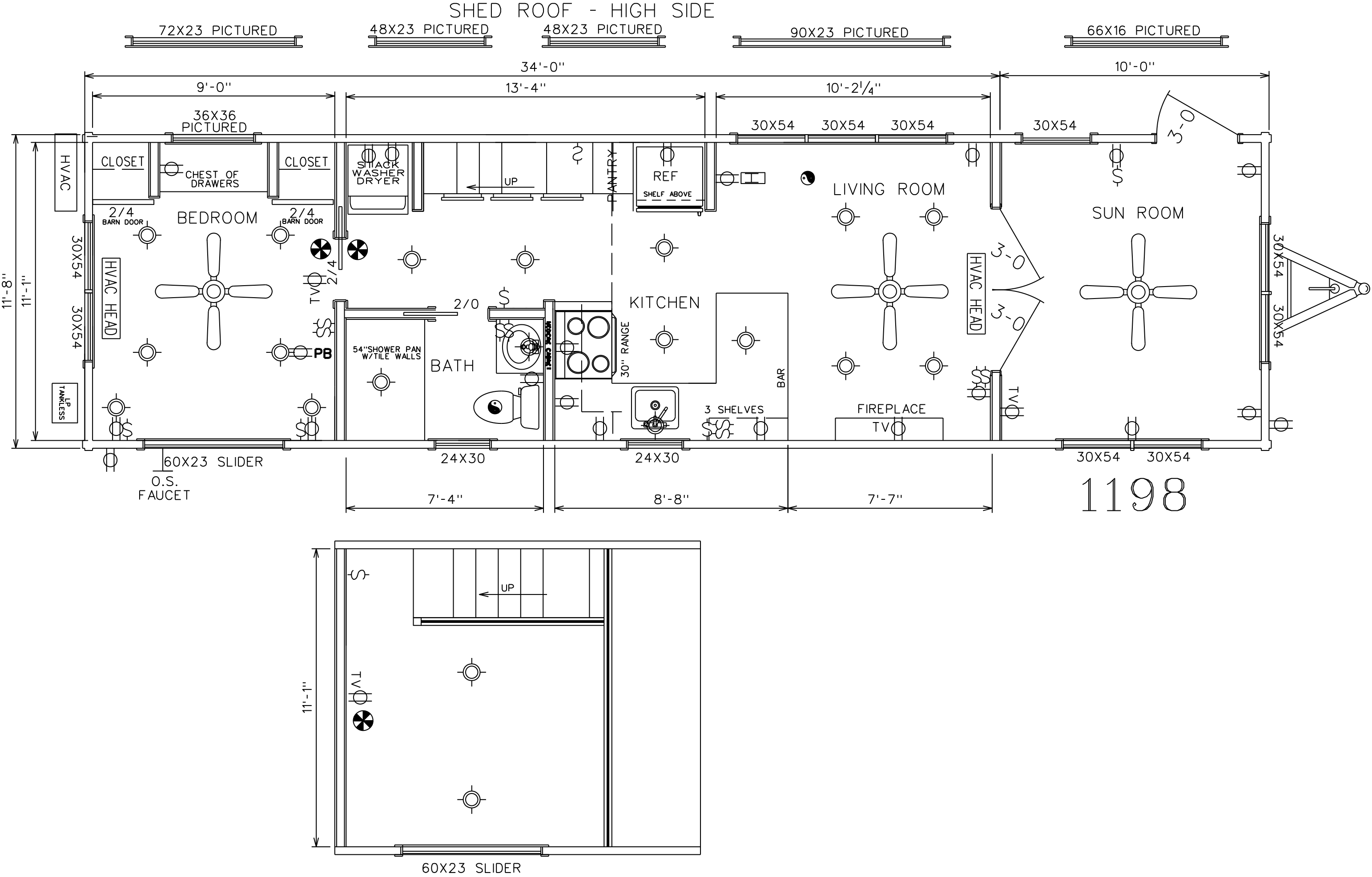
This Blackberry model tiny home is a 398 square feet, 12′ x 44′, 1 bedroom, 1 bath with a loft available to purchase now!
In addition to the standard features of any of our Tiny Life homes, this unit offers the following decor choices and premium upgrades:
Trim Options/Specs:
- Exterior Type: Log
- Exterior Color: Gun Stock Stain
- Exterior Trim: Gun Stock Stain
- Decking Color: Gun Stock Stain
- Wall Color: Natural Log
- Trim & Cabinets: Espresso
- Countertops: Venician Gold Granite
- Flooring: Cedar Auburn Vinyl Plank
- Roof: Cocoa Brown
Included Upgrades:
- Sunroom
- Additional Exterior Door
- Built-In Bedroom Chest of Drawers
- Kitchen Pantry Built-In Storage
- Under Stairs Built-In Storage
- Stainless Steel Appliances
- Stacked Washer & Dryer
- On-demand Tankless Water Heater
- Truss Ceiling
Other Notes
- Tiny Life’s homes are not towable by a passenger vehicle.
- Tiny Life offers cash incentives and financing.
- Tiny Life does not include furnishings as pictured in our galleries. Appliances are included.
- Tiny Life only includes delivery and setup in the price of turnkey tiny homes. Homes sold off our sales lot will need a lot check to confirm what’s necessary for delivery and setup.
Request More Information
If you would like more information on this in-stock unit, please complete the form below and we will be in touch with you as soon as possible.





















