Pioneer III
Stock #TL-1231
sold
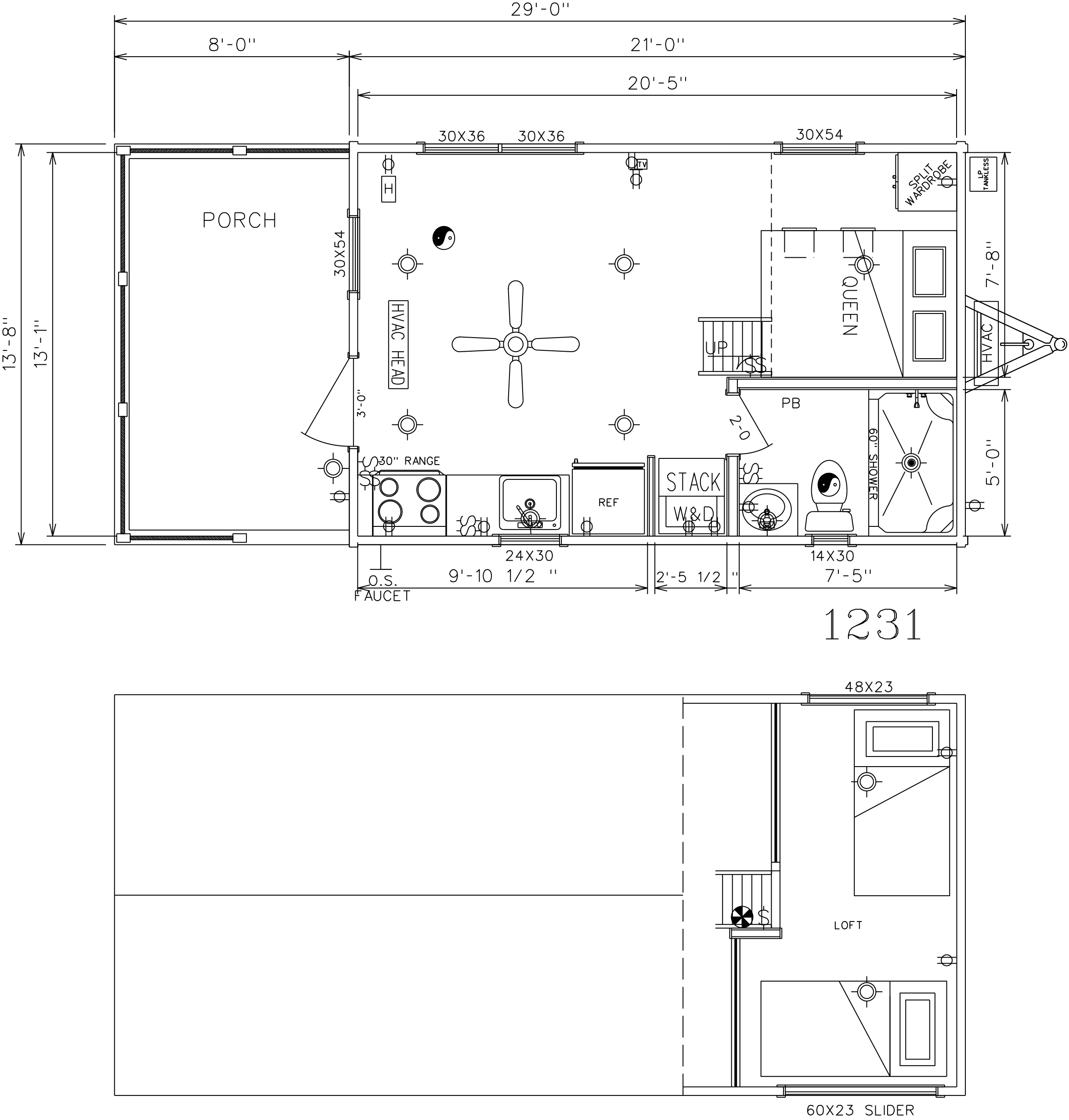
This Pioneer III model tiny home is a 276 square feet, 13.8′ x 29′, 1 bedroom, 1 bath with a loft available to purchase now!
DetailsFloorplan
Design Options/Specs:
- Exterior Type: Log
- Exterior Color: Smoky Mountain Mist
- Exterior Trim: Caviar
- Decking Color: Clamshell
- Wall Color: Clear Varnish
- Trim: Clear Varnish
- Cabinets: Stained Ebony
- Countertops: Royal Grigio
- Flooring: Weatherpost
- Roof: Black
Included Upgrades:
- Built-In Bed, Nightstands & Wardrobe
- Quartz Countertops
- Stainless Steel Appliances
- Stacked Washer & Dryer
- On-demand Tankless Water Heater
Other Notes
- Tiny Life’s homes are not towable by a passenger vehicle.
- Tiny Life offers cash incentives and financing.
- Tiny Life does not include furnishings as pictured in our galleries. Appliances are included.
- Tiny Life only includes delivery and setup in the price of turnkey tiny homes. Homes sold off our sales lot will need a lot check to confirm what’s necessary for delivery and setup.
Request More Information
If you would like more information on this in-stock unit, please complete the form below and we will be in touch with you as soon as possible.












