Pioneer
Stock #TLF-1149
sold
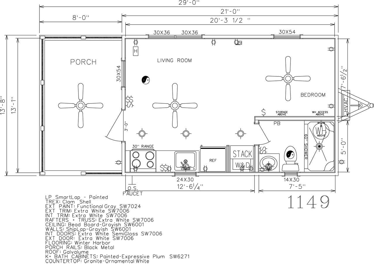
This Pioneer model tiny home is a 276 square feet, 14′ x 26′, studio bedroom, 1 bath available to purchase now!
DetailsFloorplanVideo
Design Options
- Exterior Type: LP Smartlap
- Exterior Color: Functional Gray
- Exterior Trim: Extra White
- Decking Color: Clam Shell
- Wall Color: Grayish
- Trim & Cabinets: Ex. White/ Espresso Plum
- Countertops: Ornamental White Granite
- Flooring: Weathered Post
- Roof: Galvalume
Premium Upgrades
- Ceiling Fans
- Stacked Washer & Dryer
- Farmhouse Sink with Spring Faucet
- Granite Countertops
- Composite Porch Decking
Standard Features
- Electric Range
- Refrigerator
- Microwave
- Mini-Split Heat & A/C
- Washer & Dryer Hookups
- Luxury Vinyl Floors
- 1″ x 6″ Solid Wood Interior Walls
- Solid Wood Custom Cabinets & Doors
- One-piece Fiberglass Shower or Tub
- Durable 29-Gauge Metal Roof
- Fiberglass Entry Doors
- Outside Freezeproof Faucet
- Outside GFCI Receptacle
- 30 Gallon Water Heater
Other Notes
- Tiny Life’s homes are not towable by a passenger vehicle.
- Tiny Life offers cash incentives and financing.
- Tiny Life does not include furnishings as pictured in our galleries. Appliances are included.
- Tiny Life only includes delivery and setup in the price of turnkey tiny homes. Homes sold off our sales lot will need a lot check to confirm what’s necessary for delivery and setup.
Request More Information
If you would like more information on this in-stock unit, please complete the form below and we will be in touch with you as soon as possible.












