Maddox
Stock #TLF-1158
sold
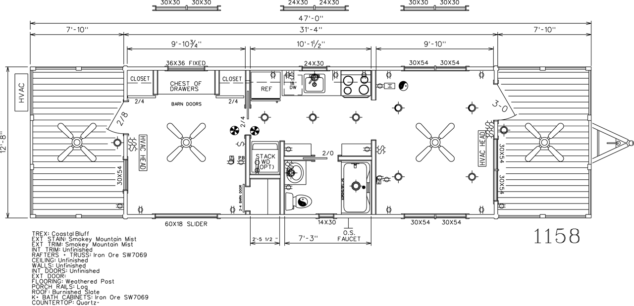
This Maddox model tiny home is a 396 square feet, 13′ x 47′, 1 bedroom, 1 bath available to purchase now!
DetailsFloorplanVideo
Design Options
- Exterior Type: Log
- Exterior Color: Smoky Mountain Mist
- Exterior Trim: Smoky Mountain Mist
- Decking Color: Coastal Bluff
- Wall Color: Natural
- Trim & Cabinets: Iron Ore
- Countertops: Ornamental White
- Flooring: Weathered Post
- Roof: Burnished Slate Galvalume
Premium Upgrades
- Ceiling Fans
- Stacked Washer & Dryer
- Quartz or Granite Countertops
- Composite Porch Decking
- Dishwasher
- Banjo Countertop over Toilet
- On-demand Tankless Water Heater
- Exterior Door in Bedroom
- Built-In Storage Options
Standard Features
- Electric Range
- Refrigerator
- Microwave
- Mini-Split Heat & A/C
- Washer & Dryer Hookups
- Luxury Vinyl Floors
- 1″ x 6″ Solid Wood Interior Walls
- Solid Wood Custom Cabinets & Doors
- One-piece Fiberglass Shower or Tub
- Durable 29-Gauge Metal Roof
- Fiberglass Entry Doors
- Outside Freezeproof Faucet
- Outside GFCI Receptacle
- 30 Gallon Water Heater
Other Notes
- Tiny Life’s homes are not towable by a passenger vehicle.
- Tiny Life offers cash incentives and financing.
- Tiny Life does not include furnishings as pictured in our galleries. Appliances are included.
- Tiny Life only includes delivery and setup in the price of turnkey tiny homes. Homes sold off our sales lot will need a lot check to confirm what’s necessary for delivery and setup.
Request More Information
If you would like more information on this in-stock unit, please complete the form below and we will be in touch with you as soon as possible.

























