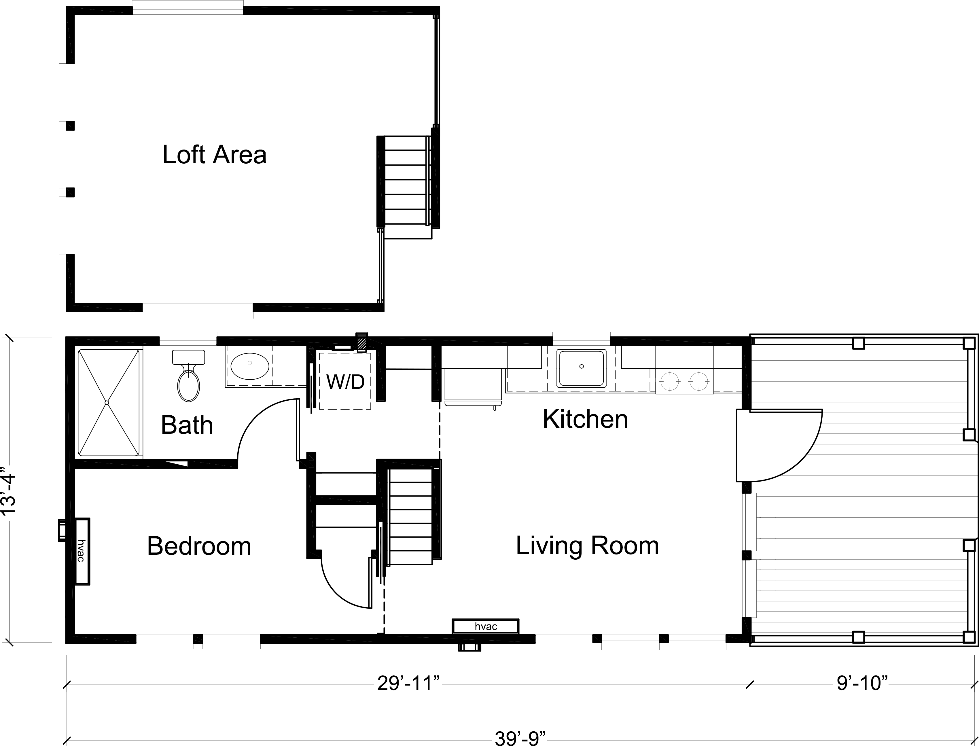
This Sipsey model tiny home is a 398 square feet, 13′ x 38′, 1 bedroom, 1 bath park model rv with a loft available to purchase now!
Design Options
- Exterior Type: Hardie
- Exterior Color: Khaki Brown
- Exterior Trim: Sealskin
- Decking Color: Weathered Wood
- Wall Color: Urban Putty
- Trim & Cabinets: Extra White / White
- Countertops: Walnut Luster Quartz
- Flooring: Fortress Piedmont Linoleum
- Roof: Galvalume
Included Upgrades
- Ceiling Fans
- Stacked Washer & Dryer
- On-demand Gas Tankless Water Heater
- Quartz Countertops
- Composite Porch Decking
- Stainless Steel Appliances
- Dishwasher
Standard Features
- Electric Range
- Refrigerator
- Microwave
- Mini-Split Heat & A/C
- Luxury Vinyl Floors
- 1″ x 6″ Solid Wood Interior Walls
- One-piece Fiberglass Shower or Tub
- Durable 29-Gauge Metal Roof
- Fiberglass Entry Doors
- Outside Freezeproof Faucet
- Outside GFCI Receptacle
- Pocket Doors
Other Notes
- Tiny Life’s homes are not towable by a passenger vehicle.
- Tiny Life offers cash incentives and financing.
- Tiny Life does not include furnishings as pictured in our galleries. Appliances are included.
- Tiny Life only includes delivery and setup in the price of turnkey tiny homes. Homes sold off our sales lot will need a lot check to confirm what’s necessary for delivery and setup.
Request More Information
If you would like more information on this in-stock unit, please complete the form below and we will be in touch with you as soon as possible.














